Description du bien
Maison année 30 Arles
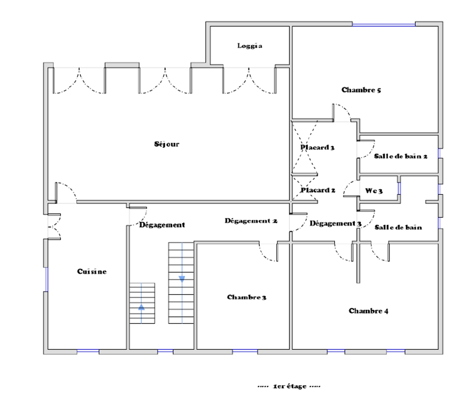
Emplacement magnifique pour cette grande maison année 30, dans le quartier cossu des Alyscamps à Arles. Située sur une belle parcelle de terrain de 1660 m2, la maison s’élève sur deux étages. 6 chambres, un bureau, une buanderie, des grands salons dont un de 44 m2, avec la possibilité de diviser la maison en deux grâce à deux entrées complètements indépendantes.
Le jardin arboré est unique, de même que sa piscine. Un garage est associé à la maison.
Travaux importants à prévoir.
Informations sur les risques auxquels ce bien est exposé sont disponibles sur le site Géorisques
DPE vierge
Diagnostics accessibles sur demande.
Diagnostics : activ expertise Arles
Adresse: 2 avenue du maréchal Foch
Région: Provence & Camargue
Zone: Arles, Quartier des Alyscamps
Code postal: 13200
Pays: France
Property Id: 24935
Prix: 700,000 € honoraires inclus à la charge du vendeur
Surface Logement: 285 m2
Surface du terrain: 1,660 m2
Pièces: 10
chambres: 6
Salles de bains: 2
Situation: ville
Orientation: sud
Étages: 2
Cave: non
Terrasse: oui
Salle D'eau: 2
Parking: oui
Garage: oui
Chauffage: fioul
Cheminée: 2
Piscine: oui



































