Description du bien
Mas avec piscine Arles
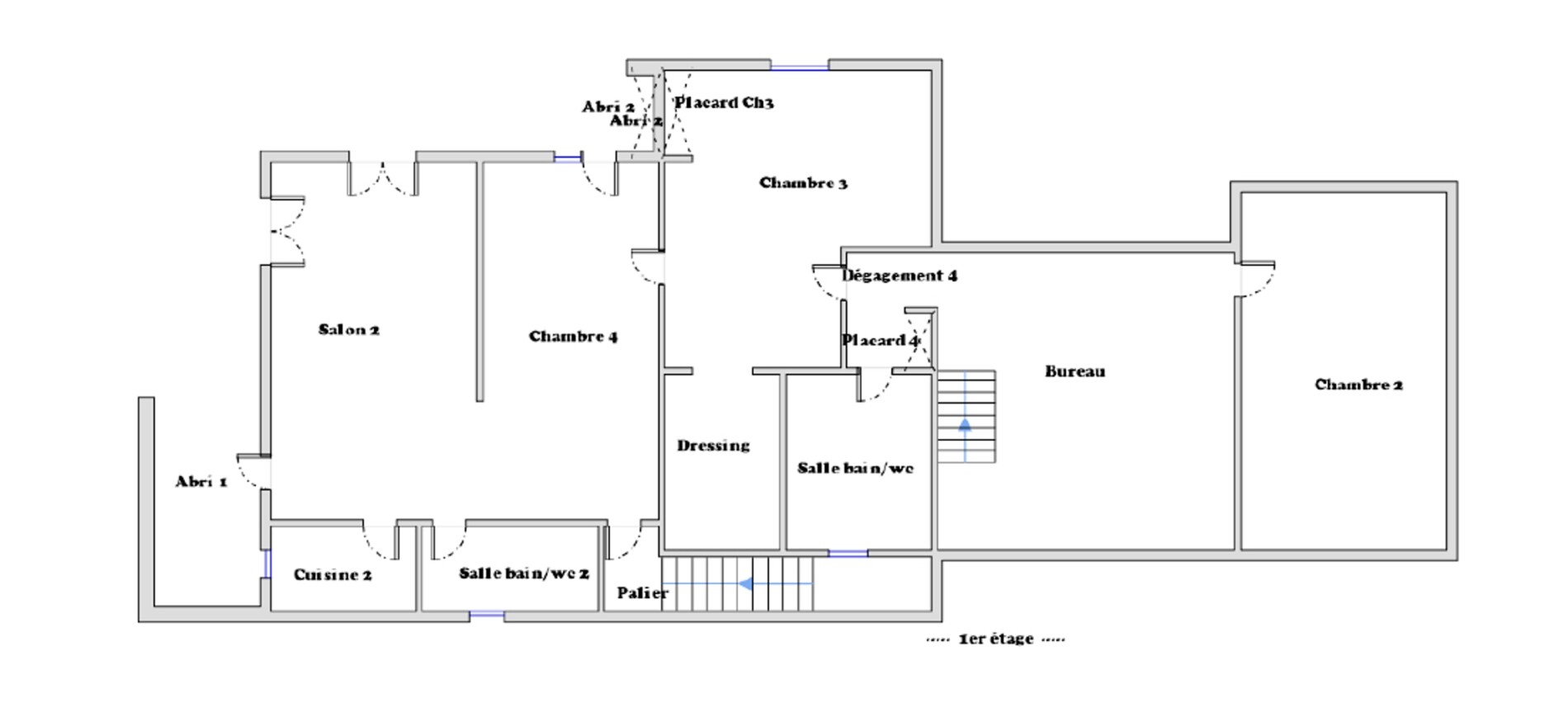
Mas avec piscine Arles Superbe mas situé sur les hauteurs de pont de crau, Arles, avec une vue magnifique sur la ville et les Alpilles. Sur un beau terrain de plus de 6500 m2, ce mas ancien a été entièrement rénové et agrandi pour avoir à présent 234 m2 habitables. Aucun vis-à-vis, aucune nuisance sonore, 4 chambres, 3 salons, un bureau, une buanderie et surtout la possibilité de créer un appartement indépendant sur la partie haute de la bâtisse.
Piscine, pool house, garage, 3 places de parking complètent le bien.
informations sur les risques auxquels ce bien est exposé sont disponibles sur le site Géorisques
Diagnostics : activ expertise Arles
Property Id: 24970
Prix: 950,000 € honoraires inclus à la charge du vendeur
Surface Logement: 234 m2
Surface du terrain: 6,500 m2
Pièces: 8
chambres: 4
Salles de bains: 2
Situation: campagne
Orientation: sud ouest
Étages: 1
Cave: non
Terrasse: oui
Salle D'eau: 1
Parking: oui
Garage: oui
Chauffage: gaz
Cheminée: 1
Piscine: oui

















































































